FACTOR BIOMASA
Siempre al servicio de las ingenierías
Departamento de ingeniería
En FACTOR BIOMASA disponemos de un departamento de ingeniería con el objetivo de dar servicio y apoyar a las ingenierías en el desarrollo de proyectos de biomasa.
Nuestra colaboración con las ingenierías está basada en tres aspectos fundamentales:
- Calidad del producto: ponemos a vuestra disposición las calderas de biomasa y accesorios de Fröling, que destacan en el mercado por sus elevados estándares calidad.
- Rapidez de repuesta: sabemos que el tiempo es oro, por lo que intentamos ser lo más rápidos y eficaces ante vuestras consultas.
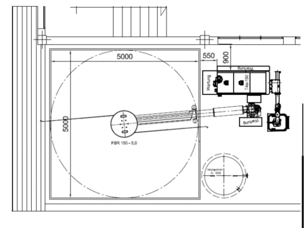
- Fácil acceso a la documentación: Os facilitamos un área partner dónde podéis acceder y descargaros todo tipo de documentación, catálogos, certificados, bloques de CAD, esquemas hidráulicos, articulado en Presto... .
Analisis y diseño de una instalación de biomasa
Análisis de la instalación
Analizamos todos los factores a tener en cuenta para llevar a cabo con éxito una instalación de biomasa, para después proponer y diseñar la solución que consideramos se ajusta más a las necesidades del cliente en cada caso.
Desarrollo de proyectos en BIM






